Sports Office
OTG 71” x 24” Flip Top Training Table
(2) 48” x 24” Desk Shell
(3) 22” File Pedestal w/ Lock
OTG Mesh Back Task Chair
(5) Popcorn Armless Chairs
Flip Top Training Table
48” Desk Shell
FinishTBD
Mobile File Pedestal
Finish tbd
Mesh Back Tilter Task Chair
Armless Popcorn Chair
color tbd
Popcorn Chair Color Swatches
-
Aquatics Office
(3) 48” x 24” Desk Shell
(4) 22” File Pedestal
60” x 30” Desk Shell
36” Return
(2) 60” x 24” Flip Top Training Tables
(4) Mesh Back Task Chair
(5) Popcorn Armless Chairs
48” x 24 Desk Shell
finish tbd
22” File Pedestal
finish tbd
60” x 30” Desk Shell
finishtbd
36” Return Shell
finish tbd
60” x 24” Flip Top Training Tables
Mesh Back Task Chair
Armless Popcorn Chair
color tbd
+
Assistant Director’s Office
48” x 24” Laminate Top Table
60” Credenza Shell
22” File Pedestal
Mesh Back TIlter Task Chair
30” 3 Drawer Lateral File
(2) Popcorn Armless Chair
Laminate Top Table
60” Credenza Shell
finish tbd
File Pedestal
Mesh Back Tilter Task Chair
30” Wide Lateral File
finish tbd
Armless Popcorn Chair
color tbd
.
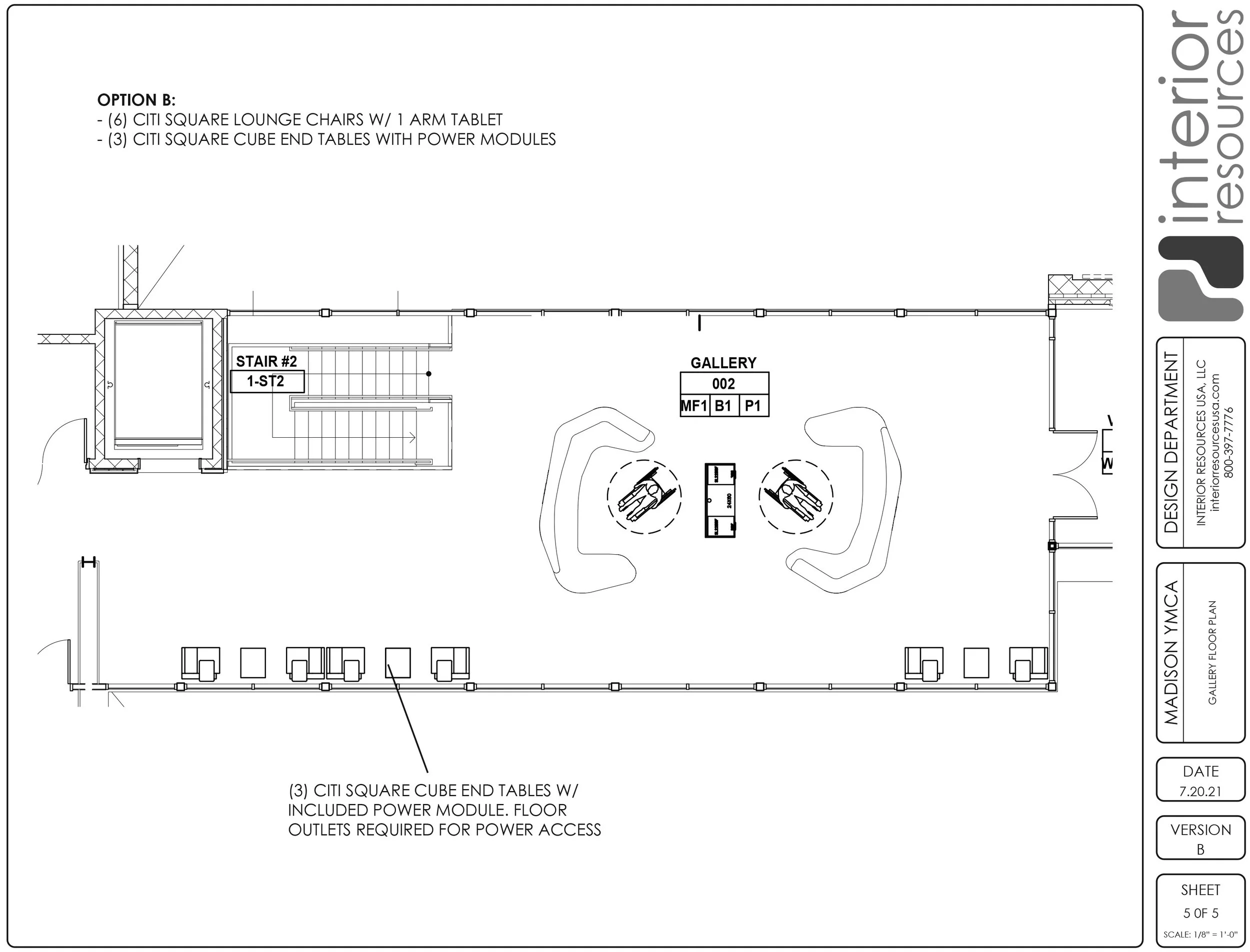
Gallery
(6) Citi Square Arm Chair w/ 1 Arm Tablet
(3) Cube End Table w/ Power Module
Credenza Shell - size and finish to be determined
Box/Box File
File/File
Citi Square Lounge Chair w/ One Arm Tablet
Mock leather/fabric tbd
Cube End Table
w/ added power module
Credenza
finish tbd
Box/Box File
File/File
,
Additional Options:
Citi Square Armless Chair
Citi Square Arm Chair
Citi Square Chair with Right Arm (Left option also available)
Citi Square Arm Chair
Lesro Sienna Chair w/ Tablet
Lesro Arm Chairs
Network Armless Chairs
Citi Square Armless Chair
Citi Square Arm Chair
Citi Square Chair w/ One Arm
right or left arm options available
Lesro Sienna Chair
w/ Tablet
Network Armless Chairs
