26 Queen Street
,
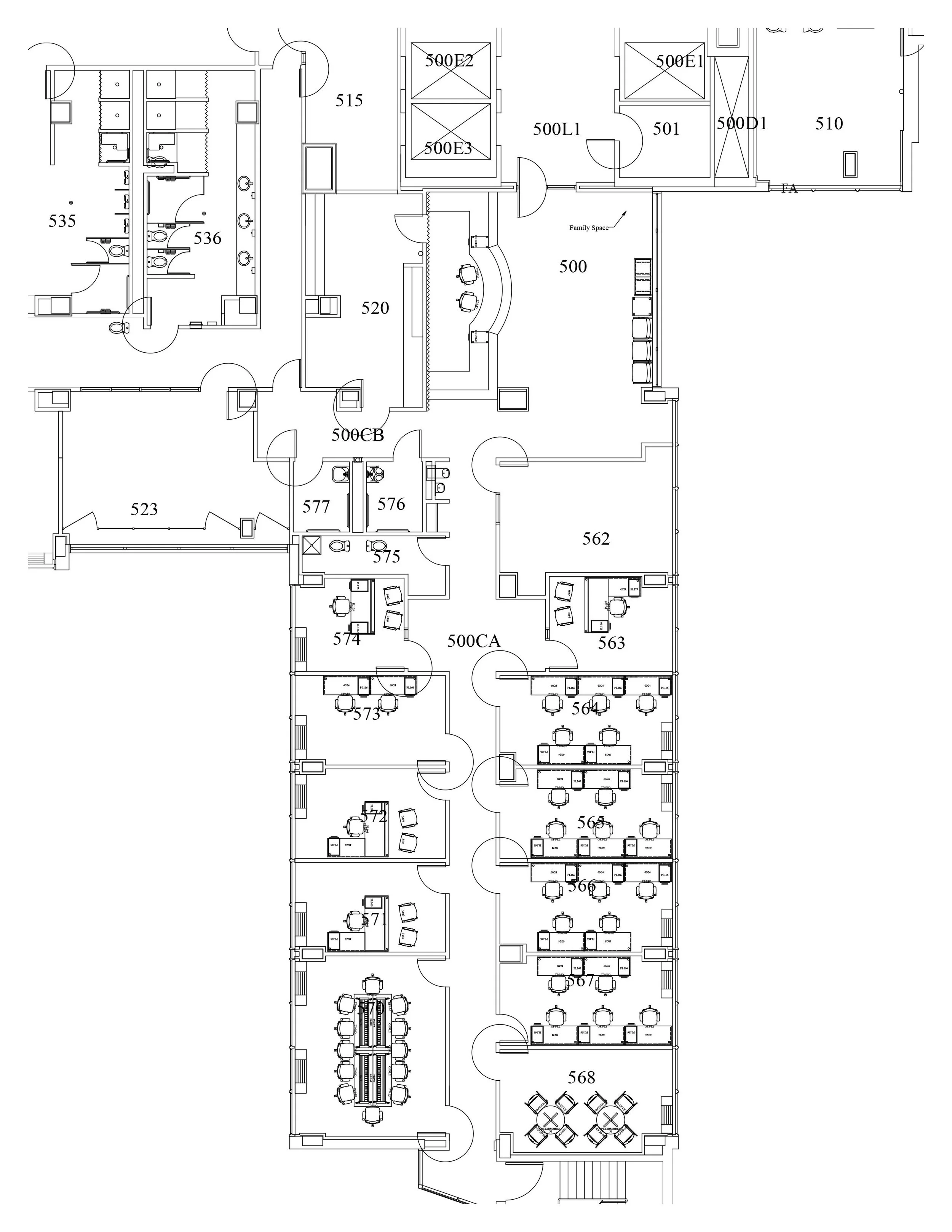
Conference Room
(4) 24” x 72” Flip-top Nesting Tables
(12) Lumen L2 Task Chairs in Black
Nesting Flip-Top Tables - Laminate Finish tbd, Black Base on Casters
Lumen L2 Task Chair
in black
.
Staff Lounge (568)
(2) 36” Round 29” High Tables w/ Black Metal “X” Base
(8) Kelly Armless Stacking Chairs
36” Round Table
w/ Black Base
Laminate Color : TBD
Kelley Side Chair
color: tbd
/
Offices 567, 566, 565, 564, 573
(22) 24” x 60’ Desks w/ Box/Box/File Pedestals
(22) Lumen L2 Task Chairs
24” x 60” Desk w/ BBF
Laminate Finish - tbd
Lumen L2 Task Chair
in black
''
Office 574
30” x 72” Desk w/ 1 Box/Box/File Pedestal and 1 File/File Pedestal
Lumen L2 Task Chair
(2) Paxton Guest Chairs
Desk Shell w/ 1 FF and 1 BBF Pedestal (*Desk shown here is 60” wide)
Lumen L2 Task Chair
in black
Paxton Guest Chair
in black
:
Office 563
30” x 72” Desk Shell w/ RIght 24” x 42” Return w/ 1 Box/Box/File and 1 File/File Pedestal
Lumen L2 Task Chair
(2) Paxton Guest Chairs
30” x 72” Desk Shell w/ Right 24” x 42” Return w/ BBF and FF Pedestal *shown here in FF only configuration
Lumen L2 Task Chair
in black
Paxton Guest Chair
in black
""
Office 571, 572
(2) 30” x 72” Desk Shells w/ 24”x48” Return, 1 BBF and 1 FF Pedestals
(2) Lumen L2 Task Chairs
(4) Paxton Guest Chairs
30” x 72” Desk Shell w/ Right 24” x 42” Return w/ BBF and FF Pedestal *shown here in FF only configuration
Lumen L2 Task Chair
20”H x 24”W x 30”D
Laminate - tbd
Paxton Guest Chairs
in black
;
Reception
(2) Lumen L2 Task Chairs
(2) Mobile Metal Box File Pedestals w/ Cushion
Lumen L2 Task Chair
in black
Mobile Metal Box File Pedestal w/ Cushion
Paint color - tbd
cushion fabric - tbd
[
Waiting Area
Lesro Gansett 2 Seat Bench
Square End Table
(3) Big and Tall Guest Chairs
Lesro Gansett 2 Seat Bench
cushion fabric/color - tbd
Square End Table
laminate - tbd
Big and Tall Guest Chair
in black
\
Bedrooms (9)
(9) Moxie Platform Beds w/ (9) 36” x 80” XLong Twin Inverted Seam Mattresses
(8) Moxie Slope Top Units
(16) Nassau Side Chairs
Moxie Platform Bed
color: tbd
Moxie Slop Top Unit
color: tbd
+
Program Room
(3) ModuMaxx X-Base Square-Top Tables
(12) Nassau Side Chairs
ModuMxx X-Base Square-Top Table
Nassau Side Chair
in java
=
Lounge
(9) Aura Barrel Chair
* Option: (9) Ballest Access Cover
ModuMaxx X-Base 42” Round-Top Table
(4) Nassau Side Chairs
Aura Barrel Chair
color: tbd
Optional Ballast
ModuMaxx X-Base 42” Round Table
black base
Nassau Side Chair
in Java
*
Sensory Room
ModuRocker Rocking Chair
ModuRocker Rocking Chair
Color: TBD
-
Finishes and Color Options
OS Laminate Options:
Kelley Chair Color Options:
AIS Pedestal Color Options:
OS Square End Table Finish Options:
Moxie Product Color Options:
_
